Beschikbaar

Martsenstraat 6

7906 HP Hoogeveen

Een afspraak maken?

Klik op de onderstaande knop om een afspraak in te plannen!
Plan een afspraak

Omschrijving

Ruime, energiezuinige en gasloze twee-onder-één-kapwoning met garage, carport, warmtepomp, 33 zonnepanelen en zonnige tuin.

Aan een rustige straat in een geliefde woonwijk van Hoogeveen staat deze goed onderhouden en duurzame twee-onder-één-kapwoning uit 1968. De woning combineert ruimte en comfort met energiezuinig wonen dankzij een warmtepomp, vloerverwarming in de woonkeuken en maar liefst 33 zonnepanelen. Met een woonoppervlakte van 146 m², vier slaapkamers, een garage en een verwarmde aanbouw aan de garage, die eventueel als werkruimte gebruikt kan worden. is dit een ideale gezinswoning. De fraai aangelegde achtertuin met overkapping en uitvalscherm ligt op het westen en biedt volop privacy en zon, terwijl je aan de voorzijde vrij uitzicht hebt over gemeentegroen en kunt parkeren op eigen terrein.

Gelegen op een mooie en vrije locatie dichtbij het ”Zuiderpark”, kanaaldijk en alle wenselijke voorzieningen zoals winkelcentra, scholen, speeltuinen, verschillende sportverenigingen en de uitvalswegen A28 en A37.

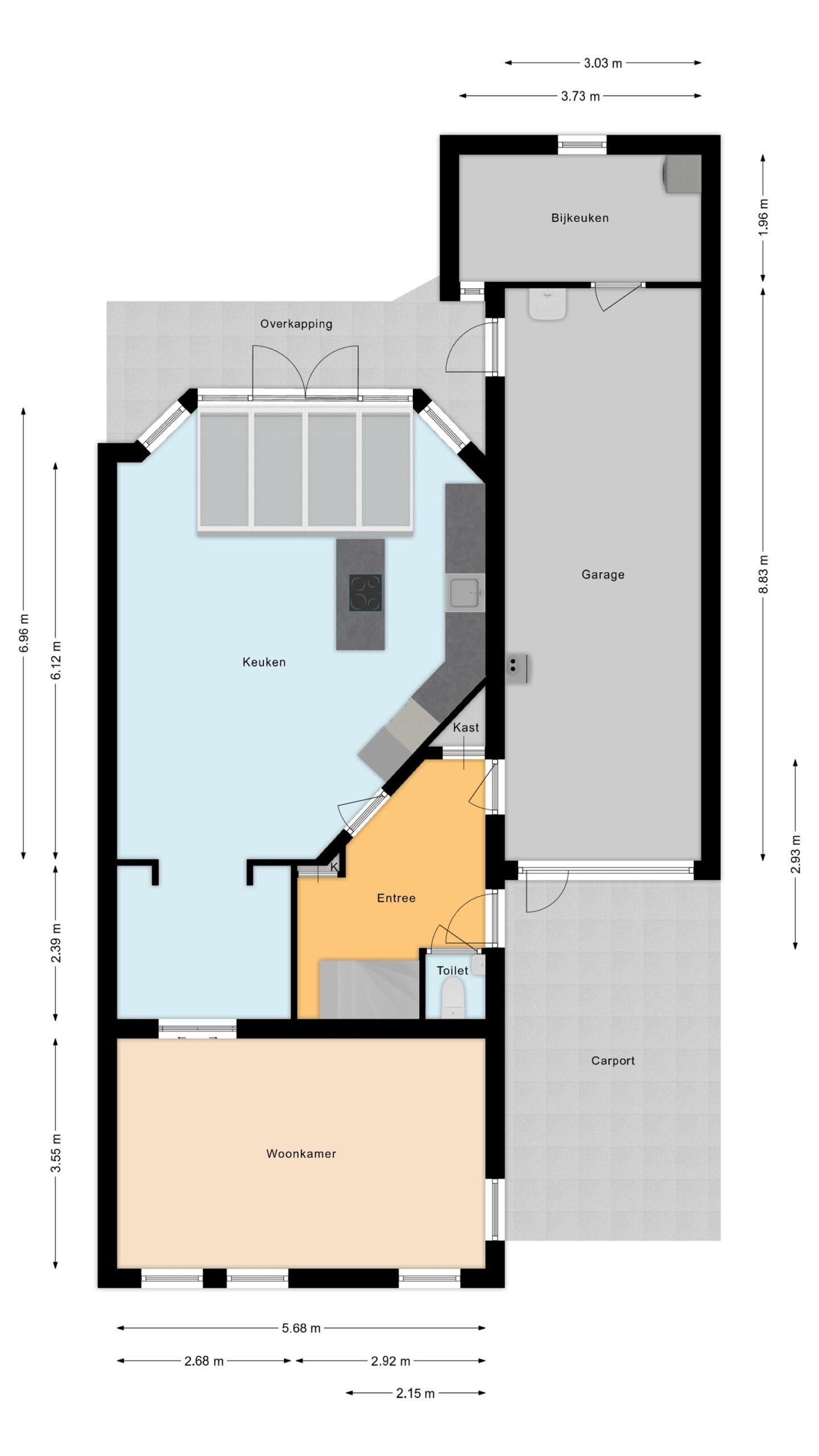
Indeling
Entree met toilet, trapopgang en een doorgang naar de garage en aangebouwde bijkeuken met de witgoedopstelling, lichte woonkamer (ca. 20 m²) met een prettige indeling en grote ramen, woonkamer is afsluitbaar met glas in lood schuifdeuren. De ruime en lichte tuingerichte woonkeuken (ca. 40 m²) met kookeiland biedt voldoende plaats voor koken en gezellig tafelen, voorzien van vloerverwarming en heeft directe toegang tot de tuin.

Eerste verdieping
Op de eerste verdieping bevinden zich drie slaapkamers, waarvan één met een wastafel, overloop en badkamer met ligbad, douche, toilet en wastafelmeubel. Badkamer is voorzien van vloerverwarming en radiatoren.

Tweede verdieping
Overloop met 2 bergingen en een ruime slaapkamer met wastafel en 2 Velux dakramen met elektrische rolluiken, horren en voorbereiding om mobiele airco te plaatsen.

Bijzonderheden:
– Bouwjaar 1968
– Grotendeels kunststof kozijnen met HR++ glas en horren
– Water warmtepomp
– Vloerverwarming in woonkeuken
– 33 zonnepanelen (opbrengst ca. 10.000 kWh per jaar)
– Zonneboiler voor warm water
– Volledig geïsoleerd
– Gasloos
– Stenen aanbouw aan garage met verwarming, elektra en water
– Video bewakingssysteem
– Airco in de woonkeuken en overloop (split-unit)
– Fraai aangelegde tuin op het westen met irrigatiesysteem
– Parkeren op eigen terrein (2 auto’s)

Bij verkoop van de woning speelt gunning een rol voor de verkoper en zij ontvangen naast de bieding tevens graag een korte motivatie/kennismakingsbrief.

Kenmerken

Overdracht

  • Status Beschikbaar
  • Vraagprijs € 465.000,- k.k.
  • Aanvaarding In overleg

Bouwvorm

  • Soort object Woonhuis
  • Soort woning Eengezinswoning
  • Type woning Twee onder één kapwoning
  • Bouwjaar 1968
  • Bouwvorm Bestaande bouw
  • Ligging Aan rustige weg, In woonwijk, Vrij uitzicht

Indeling

  • Woonoppervlakte 146 m2
  • Perceeloppervlakte 359 m2
  • Gebouwgebonden buitenruimte 28 m2
  • Inhoud 657 m3
  • Aantal kamers 6

Energie

  • Energieklasse A+++
  • Energie einddatum14 oktober 2035
  • Isolatie Volledig geïsoleerd
  • Warmwater Zonneboiler
  • Verwarming Vloerverwarming gedeeltelijk

Buitenruimte

  • Tuin Achtertuin, Voortuin
  • Hoofdtuin Achtertuin
  • Oppervlakte hoofdtuin 180 m2
  • Ligging hoofdtuin West
  • Kwaliteit tuin Fraai aangelegd

Bergruimte

  • Schuur / Berging Aangebouwd steen, Carport

Parkeergelegenheid

  • Garage -
  • Parkeerfaciliteiten Openbaar parkeren, Op eigen terrein

Dak

  • Soort dak Zadeldak

Overig

  • Permanente bewoning Ja
  • Onderhoud binnen -
  • Onderhoud buiten -
  • Huidig gebruik Woonruimte
  • Huidige bestemming Woonruimte

Voorzieningen

  • Voorzieningen Rolluiken, Buitenzonwering, Airconditioning, Zonnepanelen

Kadastrale gegevens

  • Oppervlakte 359 m2