Beschikbaar

Imkerserf (kavel 9) ong

7909 HS Hoogeveen

Een afspraak maken?

Klik op de onderstaande knop om een afspraak in te plannen!
Plan een afspraak

Omschrijving

Nog slechts 2 woningen beschikbaar!!

Aan de westzijde van Hoogeveen komt de uitbreidingswijk Nijstad-Oost, deze wijk wordt onderverdeeld in 8 boerenerven met veel groen en collectieve velden. Hier ontwikkel je in Collectief Particulier Opdrachtgeverschap (CPO) het Imkerserf, een duurzaam en sfeervol erf met diverse woningen en veel ruimte voor ontmoeting waarin kwaliteit, variatie en een prettige woonomgeving centraal staan.

Het Imkerserf bestaat totaal uit 10 woningen waarvan 2 drie-onder-een-kapwoning, 1 twee-onder-een-kapwoning en 2 vrijstaande woningen.

Groen wonen betekent ook duurzaam wonen. Als een van de eerste woonwijken in Nederland worden de huizen in Nijstad-Oost verwarmd met een cv-ketel die draait op waterstof. Dit gebeurt in een pilot waarin de gemeente de waterstof ketel betaald en jij zonder extra kosten dit nieuwe verwarmingssysteem kunt gebruiken. Zeer duurzaam én voordelig voor jou.

Beschikbare woningen:
Kavel 8: ruime vrijstaande woning met grote woonkamer en keuken van totaal ca, 60 m², bijkeuken, 3 slaapkamers en een badkamer op de verdieping en een bergzolder op de 2e verdieping. Ook deze woning leent zich uitstekend om alle voorzieningen op de begane grond te realiseren, maar zo behoort een speelkamer of kantoor ook tot de mogelijkheden.
Kaveloppervlak: 421 m²
Koopsom: € 593.900,- v.o.n.

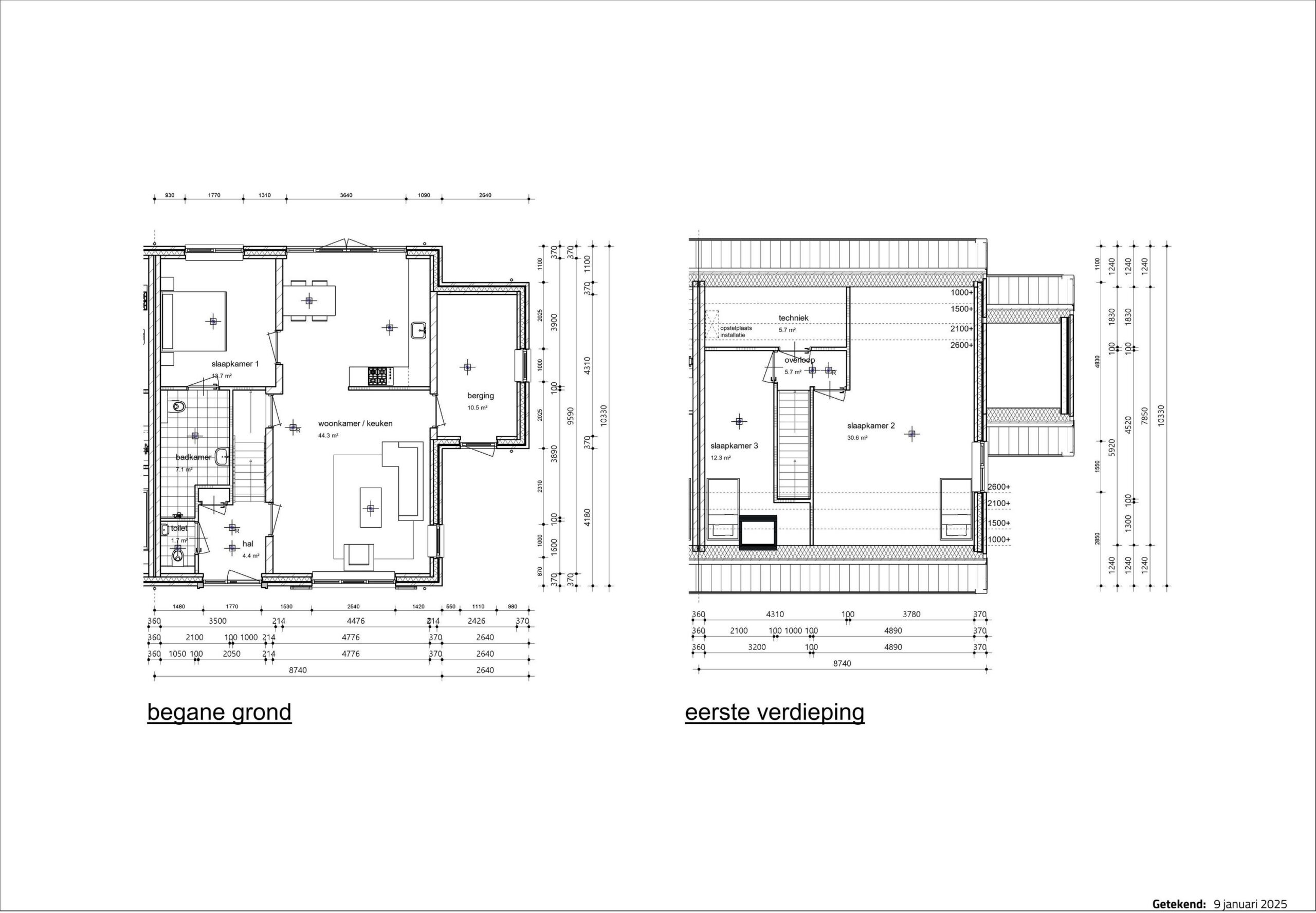
Kavel 9: ruime levensloopbestendige twee-onder-een-kapwoning met alle voorzieningen op de begane grond, 2 slaapkamers op de verdieping en de mogelijkheid voor een extra badkamer.
Kaveloppervlak: 360 m²
Koopsom: € 497.600,- v.o.n.

De woningen worden compleet opgeleverd, inclusief sanitair echter exclusief keuken.

De bouw start in het voorjaar van 2026 en de oplevering volgt in de zomer van 2027. Bekijk de impressies en neem contact op voor meer informatie – misschien wordt dit jouw nieuwe thuis.

Kenmerken

Overdracht

  • Status Beschikbaar
  • Vraagprijs € 497.500,- v.o.n.
  • Aanvaarding In overleg

Bouwvorm

  • Soort object Woonhuis
  • Soort woning Eengezinswoning
  • Type woning Twee onder één kapwoning
  • Bouwjaar 2026
  • Bouwvorm Nieuwbouw
  • Ligging Aan rustige weg, In woonwijk

Indeling

  • Woonoppervlakte 145 m2
  • Perceeloppervlakte 330 m2
  • Gebouwgebonden buitenruimte 0 m2
  • Inhoud 485 m3
  • Aantal kamers 4

Energie

  • Energieklasse A+++
  • Energie einddatum27 februari 2036
  • Isolatie Volledig geïsoleerd
  • Warmwater CV ketel, Elektrische boiler eigendom
  • C.V.-Ketel Waterstof
  • Verwarming CV ketel

Buitenruimte

  • Tuin Achtertuin, Voortuin
  • Hoofdtuin Achtertuin
  • Oppervlakte hoofdtuin 176 m2
  • Ligging hoofdtuin Oost
  • Kwaliteit tuin Aan te leggen

Bergruimte

  • Garage Aangebouwd steen
  • Schuur / Berging Geen garage

Parkeergelegenheid

  • Parkeerfaciliteiten Op eigen terrein

Dak

  • Soort dak Zadeldak

Overig

  • Permanente bewoning Ja
  • Huidig gebruik Woonruimte
  • Huidige bestemming Woonruimte

Voorzieningen

  • Voorzieningen Zonnepanelen

Kadastrale gegevens

  • Oppervlakte 330 m2