Beschikbaar

Het Lage Holt 12

7909 BN Hoogeveen

Een afspraak maken?

Klik op de onderstaande knop om een afspraak in te plannen!
Plan een afspraak

Omschrijving

Heerlijk vrij wonen in de groene en rustige wijk “Kinholt”, nabij het beekdal van het “Oude Diep” en grenzend aan het Kinholtsbos, maar toch in de directe omgeving van scholen, winkelcentra en wandelgebied? Dat is wonen aan Het Lage Holt!

Ruime, zeer goed onderhouden en lichte vrijstaande semi-bungalow met alle voorzieningen op de begane grond en tevens nog een badkamer en 3 slaapkamers op de verdieping. Deze woning heeft een ruime aangebouwde geïsoleerde garage en een fraai aangelegde tuin grenzend aan het “Kinholtsbos” met een tuinberging en prachtige vijverpartij.

Indeling
Ruime entree met vide, luxe en vernieuwd toilet, garderobe-kast en een vernieuwde en uitgebreide meterkast, vanuit de entree heb je toegang tot de kamer, keuken en de slaapkamer met royale walk-in en een badkamer met ligbad, dubbel wasmeubel, toilet en douche. De keuken van 2017 met granieten blad is uitgerust met alle wenselijke inbouwapparatuur, denk daarbij aan een Quoocker, vaatwasser, inductiekookplaat, vaatwasser enz. De tuingerichte woonkamer heeft een sfeervolle elektrische haard, schuifpui en een fraaie serre die het geheel compleet maakt en van veel licht voorziet.

Vanuit de entree kom je tevens in de ruime aangebouwde en geïsoleerde garage met een gecoate vloer en elektrische overheaddeur, in de garage tref je tevens de bijkeuken aan met een keurig keukenblok en de witgoedaansluitingen.

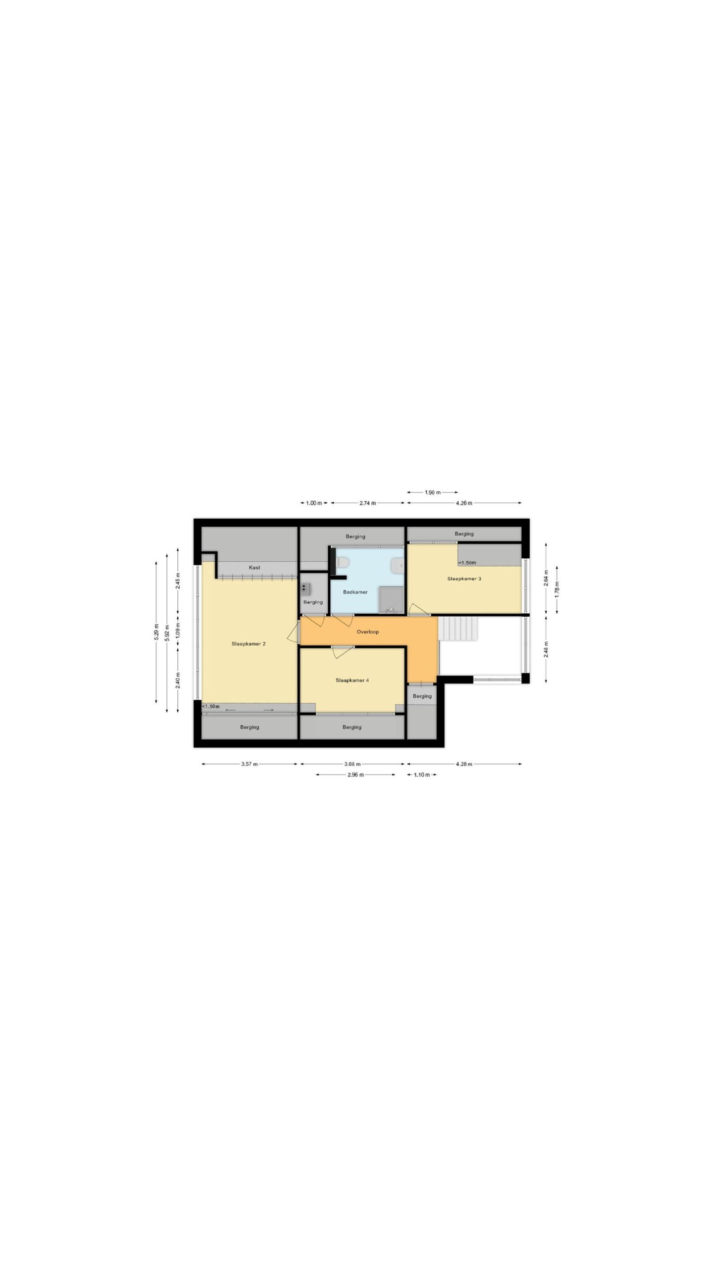
Verdieping
Overloop met een berging/CV-ruimte, 3 ruime slaapkamers waarvan een met een dakkapel en een met een kastenwand en een badkamer met dakkapel, badkamermeubel, toilet en een douche.

Bijzonderheden
– het buitenschilderwerk is van 2024
– de CV-ketel is van maart 2025
– de woning is nagenoeg volledig voorzien van HR++ beglazing
– vloerisolatie (2011)
– muurisolatie (2019)
– 10 zonnepanelen (2023)
– grote kavel van 734 m²

Kenmerken

Overdracht

  • Status Beschikbaar
  • Vraagprijs € 725.000,- k.k.
  • Aanvaarding In overleg

Bouwvorm

  • Soort object Woonhuis
  • Soort woning Eengezinswoning
  • Type woning Vrijstaande woning
  • Bouwjaar 1978
  • Bouwvorm Bestaande bouw
  • Ligging Aan bosrand, Aan rustige weg, In woonwijk

Indeling

  • Woonoppervlakte 183 m2
  • Perceeloppervlakte 734 m2
  • Gebouwgebonden buitenruimte 0 m2
  • Inhoud 773 m3
  • Aantal kamers 6

Energie

  • Energieklasse C
  • Energie einddatum4 maart 2035
  • Isolatie Volledig geïsoleerd
  • Warmwater CV ketel
  • C.V.-Ketel HR
  • Verwarming CV ketel

Buitenruimte

  • Tuin Tuin rondom
  • Hoofdtuin Tuin rondom
  • Kwaliteit tuin Fraai aangelegd

Bergruimte

  • Garage Vrijstaand hout
  • Schuur / Berging Aangebouwd steen

Parkeergelegenheid

  • Parkeerfaciliteiten Op eigen terrein

Dak

  • Soort dak Zadeldak

Overig

  • Permanente bewoning Ja
  • Huidig gebruik Woonruimte
  • Huidige bestemming Woonruimte

Voorzieningen

  • Voorzieningen alarminstallatie, Schuifpui, Zonnepanelen

Kadastrale gegevens

  • Oppervlakte 734 m2