Beschikbaar

De Poste 40

7913 RH Hollandscheveld

Een afspraak maken?

Klik op de onderstaande knop om een afspraak in te plannen!
Plan een afspraak

Omschrijving

Prachtig uitgebouwde 2 onder 1 kapwoning, op een fantastische locatie met uitzicht op de vijver. Deze woning is volledig instapklaar met allerlei luxe! 

Op een rustige en aantrekkelijke locatie, nabij het water, staat deze goed onderhouden en ruime woning met erker, vier slaapkamers, aangebouwde garage en een keurig aangelegde tuin met een heerlijke tuinkamer. De woning is gebouwd in 2006, volledig geïsoleerd en voorzien van energielabel A. Wat zorgt voor comfortabel en energiezuinig wonen. Daarnaast beschikt de woning over een eigen oprit voor 2 auto’s en er is parkeergelegenheid voor de deur.

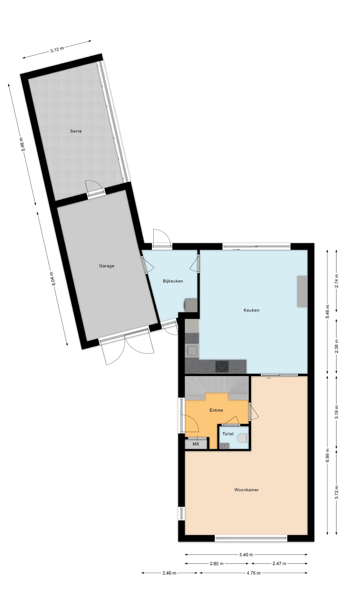
Indeling begane grond:
Entree met hal, uitgebreide meterkast, toilet en trapopgang. De woonkamer is straatgericht en aan de achterzijde uitgebouwd en sfeervol ingericht met een gashaard en schuifpui. De moderne matzwarte keuken is voorzien van diverse inbouwapparatuur waaronder een Bora kookplaat, quooker, combi-oven, koelkast en een vaatwasser. Aansluitend is de praktische bijkeuken met witgoedaansluiting en toegang tot de garage en de tuinkamer en tuin. De begane grond is voorzien van vloerverwarming en screens voor extra comfort.

Indeling eerste verdieping:
Overloop met airconditioning en toegang tot drie slaapkamers. De badkamer is luxe uitgevoerd met een ligbad, inloopdouche, toilet, dubbele wastafel en een sunshower.

Indeling tweede verdieping:
Overloop met toegang tot een vierde slaapkamer met een dakkapel en veel bergruimte.

Bijzonderheden:
– Energielabel A;
– Badkamer vernieuwd in 2021;
– Vloerverwarming op de begane grond en badkamer;
– Voorzien van screens en rolluiken;
– Gashaard in de woonkamer;
– CV-ketel Remeha (2015);

Kenmerken

Overdracht

  • Status Beschikbaar
  • Vraagprijs € 589.500,- k.k.
  • Aanvaarding In overleg

Bouwvorm

  • Soort object Woonhuis
  • Soort woning Eengezinswoning
  • Type woning Geschakelde twee onder één kapwoning
  • Bouwjaar 2006
  • Bouwvorm Bestaande bouw
  • Ligging Aan water, Aan rustige weg, In woonwijk

Indeling

  • Woonoppervlakte 153 m2
  • Perceeloppervlakte 291 m2
  • Gebouwgebonden buitenruimte 0 m2
  • Inhoud 614 m3
  • Aantal kamers 5

Energie

  • Energieklasse A
  • Energie einddatum28 mei 2028
  • Isolatie Dubbelglas, Volledig geïsoleerd
  • Warmwater CV ketel
  • C.V.-Ketel Remeha Aventa
  • Verwarming CV ketel, Vloerverwarming gedeeltelijk

Buitenruimte

  • Tuin Achtertuin, Voortuin, Zijtuin
  • Hoofdtuin Achtertuin
  • Oppervlakte hoofdtuin 94 m2
  • Ligging hoofdtuin Oost
  • Kwaliteit tuin Verzorgd

Bergruimte

  • Schuur / Berging Aangebouwd steen

Parkeergelegenheid

  • Garage -
  • Parkeerfaciliteiten Op eigen terrein

Dak

  • Soort dak Zadeldak

Overig

  • Permanente bewoning Ja
  • Onderhoud binnen -
  • Onderhoud buiten -
  • Huidig gebruik Woonruimte
  • Huidige bestemming Woonruimte

Voorzieningen

  • Voorzieningen Rolluiken, Airconditioning, Schuifpui, Glasvezel kabel, Zonnepanelen

Kadastrale gegevens

  • Oppervlakte 291 m2