Beschikbaar

Schelde 11

7908 HW Hoogeveen

Een afspraak maken?

Klik op de onderstaande knop om een afspraak in te plannen!
Plan een afspraak

Omschrijving

Volledig instapklare hoekwoning met zeer royale uitgebouwde woonkamer, garage, eigen oprit, drie slaapkamers en een tuin op het zuiden.

In een rustige en kindvriendelijke woonwijk staat deze uitstekend onderhouden hoekwoning met lichte woonkamer, garage en zonnige tuin met achterom. Het is een comfortabele gezinswoning met veel ruimte en een prettige indeling. De achtertuin is verzorgd aangelegd, biedt veel privacy en is voorzien van een achterom. Aan de voorzijde is parkeergelegenheid op eigen terrein. Aan de achterzijde bevindt zich een speeltuin.

Alle wenselijke voorzieningen, zoals winkel- en gezondheidscentrum “De Weide”, scholen, sportfaciliteiten etc. zijn op loopafstand gelegen. Ook zit u op enkele fietsminuten van het centrum van Hoogeveen en zijn de uitvalswegen A28 en A37 nabij.

Indeling begane grond:
Entree met meterkast, toilet en trapopgang. Lichte en uitgebouwde woonkamer met openslaande tuindeuren naar de tuin en een open keuken aan de voorzijde, voorzien van o.a. een 6 pits gasfornuis, Quooker, vaatwasser, oven, magnetron, koelkast en een vriezer. Vanuit de woonkamer is de garage bereikbaar welke voorzien is van elektra en water.

Indeling eerste verdieping:
Overloop met drie ruime slaapkamers. De badkamer is voorzien van een inloopdouche, wastafelmeubel en toilet.

Indeling tweede verdieping:
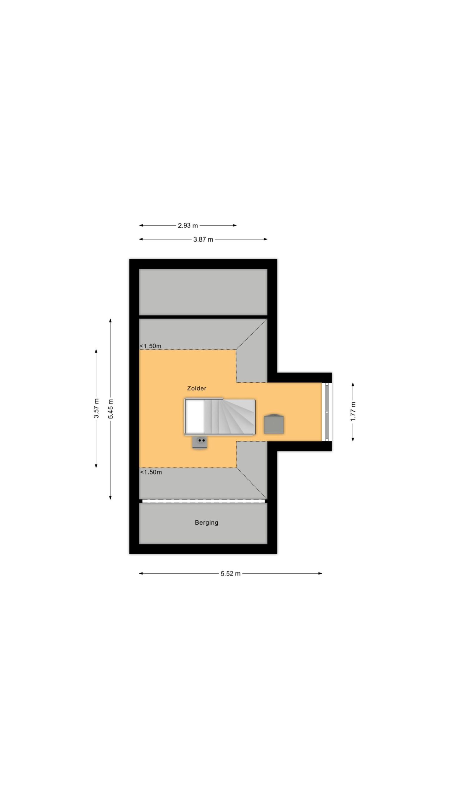
Via een vaste trap bereikbare zolderverdieping met veel bergruimte, dakkapel, witgoedaansluiting en mogelijkheden voor het creëren van een extra (slaap)kamer.

Bijzonderheden
– Energielabel B
– Deels kunststof kozijnen
– CV-ketel Nefit (2020)
– Volledig geïsoleerd
– Aangebouwde garage met elektra en water
– Parkeergelegenheid op eigen terrein

Kenmerken

Overdracht

  • Status Beschikbaar
  • Vraagprijs € 399.500,- k.k.
  • Aanvaarding In overleg

Bouwvorm

  • Soort object Woonhuis
  • Soort woning Eengezinswoning
  • Type woning Hoekwoning
  • Bouwjaar 1995
  • Bouwvorm Bestaande bouw
  • Ligging Aan rustige weg, In woonwijk

Indeling

  • Woonoppervlakte 134 m2
  • Perceeloppervlakte 275 m2
  • Gebouwgebonden buitenruimte 0 m2
  • Inhoud 575 m3
  • Aantal kamers 4

Energie

  • Energieklasse B
  • Energie einddatum17 december 2030
  • Isolatie Dubbelglas, Volledig geïsoleerd
  • Warmwater CV ketel
  • C.V.-Ketel Nefit
  • Verwarming CV ketel

Buitenruimte

  • Tuin Achtertuin, Voortuin
  • Hoofdtuin Achtertuin
  • Oppervlakte hoofdtuin 156 m2
  • Ligging hoofdtuin Zuid
  • Kwaliteit tuin Verzorgd

Bergruimte

  • Schuur / Berging Aangebouwd steen

Parkeergelegenheid

  • Parkeerfaciliteiten Openbaar parkeren, Op eigen terrein

Dak

  • Soort dak Zadeldak

Overig

  • Permanente bewoning Ja
  • Huidig gebruik Woonruimte
  • Huidige bestemming Woonruimte

Voorzieningen

  • Voorzieningen Mechanische ventilatie, TV kabel, Glasvezel kabel

Kadastrale gegevens

  • Oppervlakte 275 m2